1. Accueil
  2. Achat
  3. Achat Appartement
  4. Achat Appartement LE PUY EN VELAY (43000)

Appartement T4 à vendre 5 pièces - 108,60 m2 LE PUY EN VELAY - 43

Ref : 3942

320 000 €

  • Honoraires charge vendeur
Appartement T4 à vendre - 5 pièces - 108.6 m2 - LE PUY EN VELAY - 43 - AUVERGNE - Century 21 L'Agence Du Velay
Appartement T4 à vendre - 5 pièces - 108.6 m2 - LE PUY EN VELAY - 43 - AUVERGNE - Century 21 L'Agence Du Velay
Appartement T4 à vendre - 5 pièces - 108.6 m2 - LE PUY EN VELAY - 43 - AUVERGNE - Century 21 L'Agence Du Velay
Exclusivité
Envoyer un message
Message
Envoyer ce bien à un ami

Description

Idéalement situé au Puy en Velay, à proximité du centre ville, du quartier de l'atelier des arts, du stade Massot et des rives de la Borne, ce programme neuf, à l'échelle d'un quartier, entend créer un mail végétal et des espaces offrant une vue panoramique sur la vieille ville.
L'ensemble résidentiel totalise 39 logements répartis en trois bâtiments. Les deux premiers dialoguent le Boulevard Gambetta, avec une typologie basée sur celle des hôtels particuliers construits au XIXème siècle sur cet axe. Le troisième sera orienté sur le bas de la ville. Cette disposition permet de créer un mail central qui se termine par un jardin collectif, balcon panoramique offrant un espace au calme isolé du boulevard et apprécié par tous les occupants.
Le projet, conforme à la Règlementation énergétique 2020 (RE 2020) et aux normes PMR se veut accueillant à la végétation qui servira de filtres et de brise-vues. Isolation renforcée, énergie renouvelable pour le chauffage et récupération des eaux de pluie permettront de réduire les charges et de diminuer l'empreinte énergétique des logements.
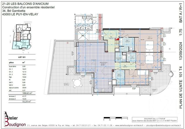
Cet appartement situé dans le Bâtiment A, bénéficie d'une exposition triple exposition sud, est et ouest et de plus de 55 m² de terrasse. Situé au 1er étage, ce T4 de 108 m² comprend un séjour/ cuisine, une entrée avec placard mural, trois chambres, deux salles d'eau, une buanderie et un WC.
Possibilité d'acquérir une cave et un garage.
Frais de Notaire réduits.
Livraison Juin 2026.

Localisation

Laissez-nous vos coordonnées pour obtenir la localisation

Envoyer

Afficher sur la carte :

Demander la localisation

Vue globale

  • Surface totale : 108,6 m2
  • Surface habitable : 108,6 m2
  • Type d'appartement : T4
  • Étage : 1er
  • Nombre de pièces : 5
    • Entrée (6,6 m2)
    • Placard (0,9 m2)
    • Séjour (39,6 m2)
    • Chambre (19,9 m2)
    • Chambre (12,1 m2)
    • Chambre (10,0 m2)
    • Dégagement (4,2 m2)
    • Salle d'eau (5,8 m2)
    • Salle d'eau (4,6 m2)
    • Buanderie cellier (2,6 m2)
    • WC (2,3 m2)
  • Année construction : 2025

Équipements

Les plus

Terrasse

Général

  • WC séparés
  • Chauffage : Collectif chauffage au sol aérothermie
  • Ascenseur
  • Balcon
  • Videophone

À savoir

Copropriété

  • Nombre de Lots : 42
  • Charges courantes par an : 810,0 €
  • Pas de procédure en cours

Les performances énergétiques

Non soumis au DPE

Envoyer à un ami

Envoyer

Envoyer un message :

Envoyer

Créer votre alerte

Rappel de vos critères de recherche :

Erreur dans les critères envoyés

Limite d'alertes atteinte

Cette alerte existe déjà

Cette alerte est déjà enregistrée pour cette adresse email. Vous continuerez à recevoir les biens correspondant à vos critères.

Une erreur est survenue

Merci de réessayer ultérieurement.

Votre alerte a été créée

Vous recevrez les biens correspondant à vos critères.

logo vente privées

48h

d’avance sur
le marché

Prenez un temps d’avance sur le marché en profitant gratuitement des Ventes Privées CENTURY 21

Si ce n’est pas déjà fait, créez votre compte client pour recevoir en avant-première des biens exclusifs, réservés à nos clients pendant les 48 premières heures suivant leur commercialisation.

Nos agences proposent régulièrement des biens comme celui que vous cherchez

Ne ratez pas une opportunité, on vous alerte en priorité !

Êtes-vous actuellement propriétaire de votre bien ?
Créer une alerte
Je souhaite être alerté
Voir les biens correspondants